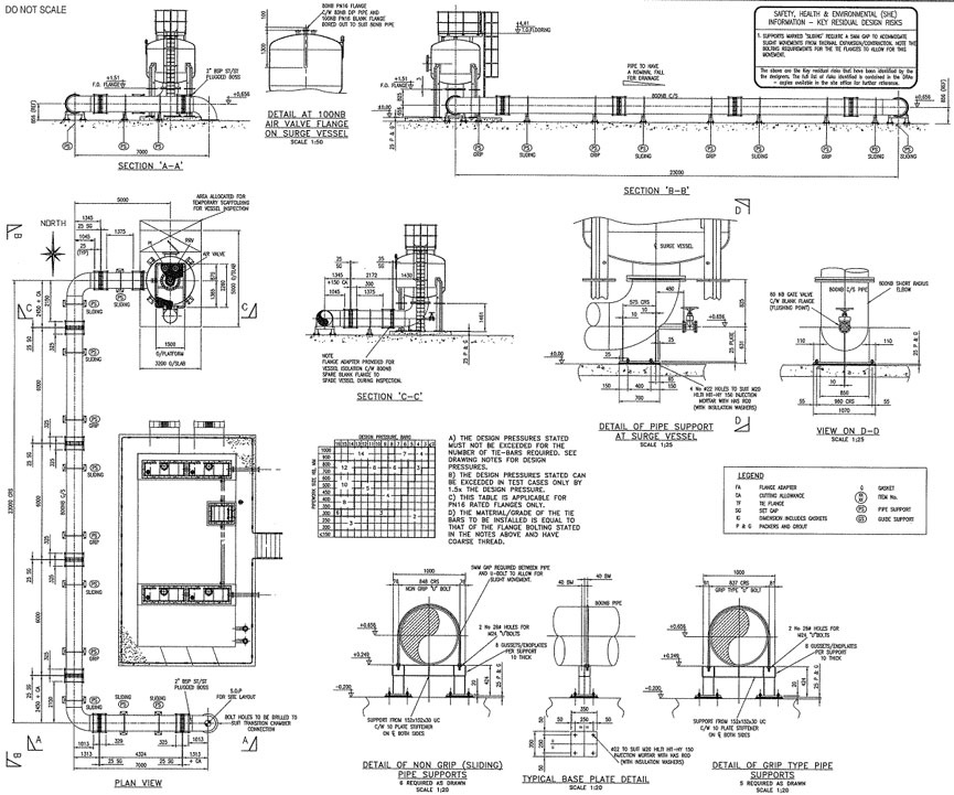
Manchester Square storm water surge vessel and piping
We were awarded the contract to supply and install a surge vessel with the capacity of nine cubic meters and 35 meters of associated 800Nb Pipework C/W pipe supports and access steelwork, all coated to withstand coastal weather conditions.
